中文版
Welcome to Jiangyin Yafeng Printing & Dyeing Machinery Co., Ltd!
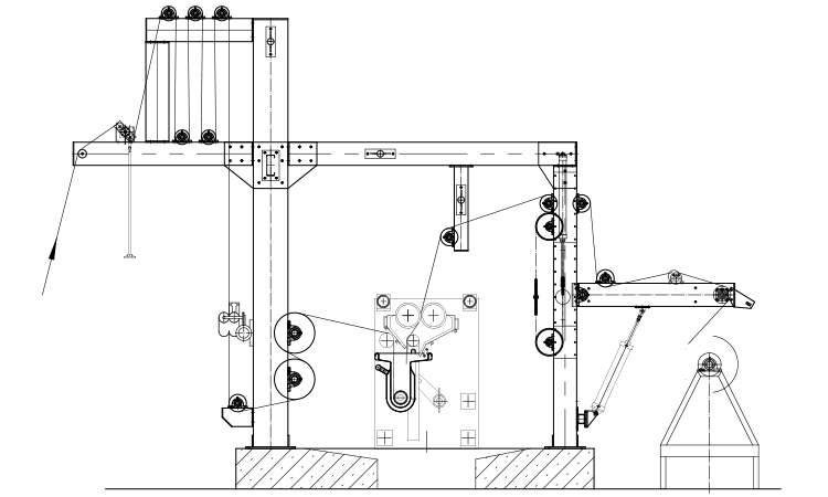
◆ Application
This machine is suitable for chemical fiber, cotton and their blended fabrics active dyes open width cold rolling pile dyeing.
◆ Technical parameter
1, a variety of process parameters online measurement and control to ensure the quality of dyeing.
2, using the central winding device, cloth rising force control.
3, process liquid ratio, temperature, liquid level automatic control, strict control of color difference.
4. The central winding is equipped with a constant distance tracking device for the rolling roller.
◆ Flow chart
Monday To Friday:8:00-20:00
Saturday, Sunday:9:00-18:00
Address:No.1777 Yunnan road nanzha town,Jiangyin city
Tel:+86 510-86181733 / +86 51086183113
Phone:+86 15152279788 / +86 13806163238
Fax:+86 510-86183218

